トップ > 不動産情報
不動産情報(賃貸)
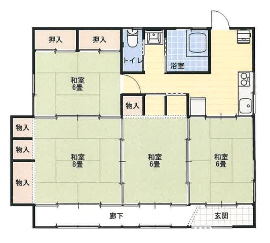
広野町下北迫 貸家 4K福島県双葉郡広野町大字下北迫字東町210-17 |
■お問い合せ 0240-23-5699 東北技研工業株式会社 不動産部 |
| 所在地 | 福島県双葉郡広野町大字下北迫字東町210-17 |
|---|---|
| 間取 | 4K |
| 入居可能日 | 2026年2月上旬 |
| 家賃 | 4.2万円 |
| 共益費 | なし |
| 駐車料 | 無料 |
| 面積 | 77.84㎡(23.54坪) |
| 敷金 | 賃料の1か月分 |
| 礼金 | 無料 |
| 駅徒歩 | JR常磐線「広野駅」から徒歩22分 |
|---|---|
| 専有面積 | 77.84㎡(23.54坪) |
| 階 | 1階 |
| 建物種別 | 戸建て |
| 間取り詳細 | 4K |
| 構造 | 木造 |
| 階立 | 1階 |
| 築年月 | 1973年1月 |
| 損保 | 借家人賠償保険加入必須 |
| 取引形態 | 媒介 |
| 保険会社 | 保証会社加入必須 |
| 設備 | B・T別 シャワー 追焚機能 トイレ シャワー付洗面化粧台 洗面所独立 IHクッキングヒーター 収納スペース 冷蔵庫 照明器具 家具付き 家電付 室内洗濯機置場 洗濯機置場 室内物干し 給湯 エアコン 火災警報器(報知機) 庭 専用庭 ペット可に変更の場合、賃料は4.7万円、敷金は賃料の2ヶ月分 |
販売店情報
東北技研工業株式会社 不動産部トウホクギケンコウギョウ フドウサンブ
TEL:0240-23-5699
住所:福島県双葉郡楢葉町大字山田岡字根ッ子原6番地2



















